Crazyones
Huamao, Beijing
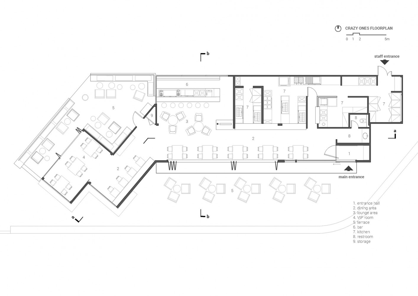
Interior design for a Spanish restaurant in Huamao, Beijing. In order to introduce a Spanish element to the design, the container-based space was transformed into the typical Spanish beach restaurant, by using materials, light and furniture to recreate a Mediterranean atmosphere.
Category
Restaurant & Bar
Location
Huamao, Beijing
Area
210m2
Client
Private
Year
2017
Status
Completed

