Cravings
Chaoyang, Beijing
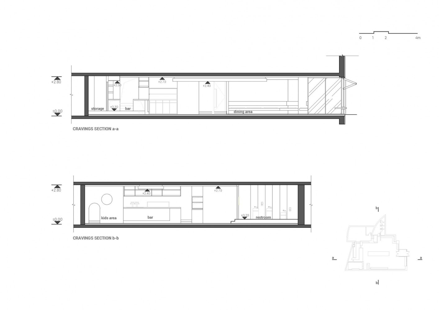
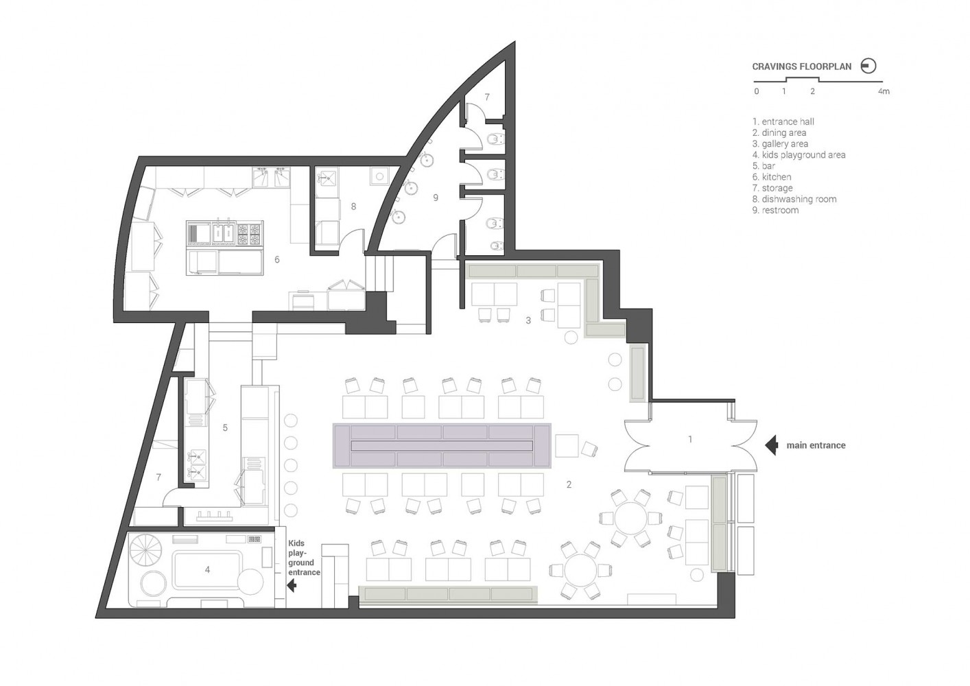
Interior design for a family restaurant in the Park Avenue residential compound. The use of vibrant colours with materials such as ceramic tiles, gave the space a new life. It’s a family restaurant with a specific area for children to play. It also includes a dedicated space for art exhibitions and other cultural activities.
Category
Renovation, Restaurant & Bar
Location
Chaoyang, Beijing
Area
230m2
Client
Private
Year
2017
Status
Completed

